トップ > 物件のご紹介 > 3K~・貸家・その他 / 鈴木貸家二番館2、3F(申込有)

鈴木貸家二番館2、3F(申込有)
200,000円
***
1か月・1か月/***・***
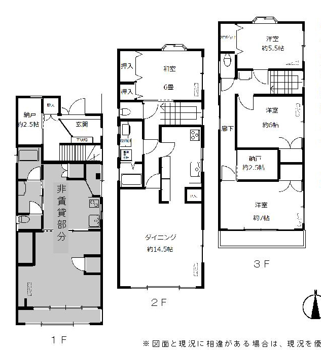
132.07㎡
鉄骨造り
1993年3月
3階建ての2、3階部分
南
エアコン、給湯
東京都荒川区東尾久8丁目
日暮里舎人ライナー線・都電荒川線 熊野前駅徒歩4分
♦更新料:1ヶ月
♦更新事務手数料:新賃料の0.25ヶ月+税
♦保証会社加入必須:㈱宅建ブレインズ 初回保証委託料(月額賃料の70%または100%)
♦火災保険加入必須:ジャパン少額短期保険 25,000円~
♦新規鍵交換費用:33,000円~
♦退去時クリーニング費用:121,000円(税込)
♦エアコンクリーニング費用:77,000円(税込)/5台分
♦取引態様:媒介