トップ > 物件のご紹介 > 1DK・1LDK / ハウス小林NO.6 2F(成約済)

ハウス小林NO.6 2F(成約済)
74,000円
3,000円
1ヶ月・1ヶ月/***・***
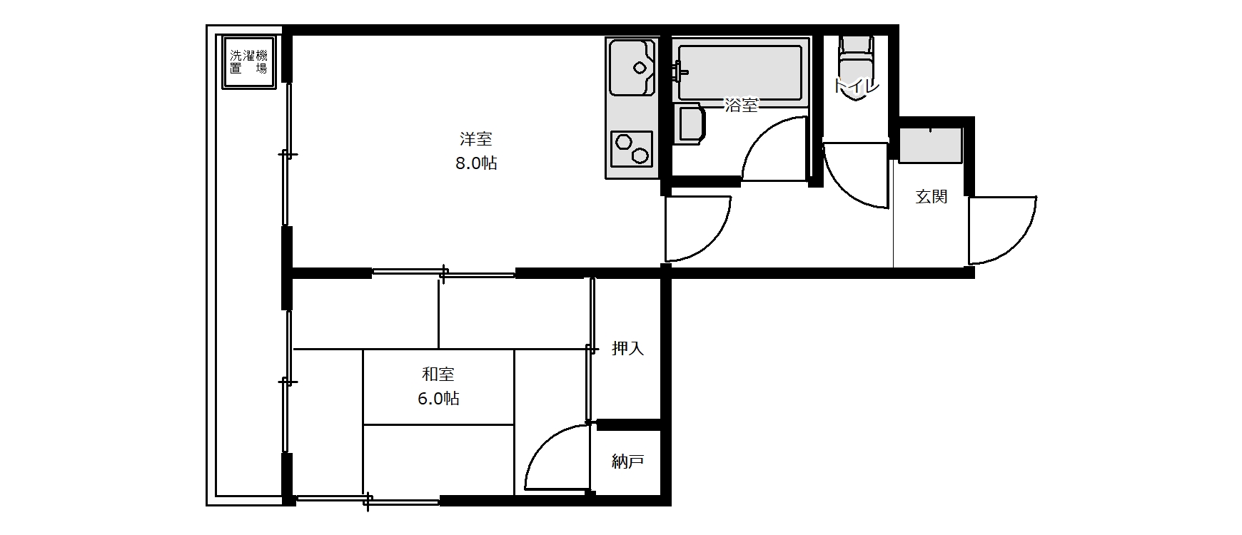
33.96㎡
鉄骨造3階建て
1985年12月
3階建ての2階部分
西
給湯、エアコン
東京都荒川区町屋8丁目
東京メトロ千代田線 町屋駅徒歩10分
京成本線 町屋駅徒歩10分
更新料:新賃料の1ヶ月
更新事務手数料:新賃料の0.25ヶ月+税
火災保険加入必須:17,000円~
保証会社加入必須:㈱宅建ブレインズ 初回保証委託料(月額賃料+管理費の70%または100%)
新規鍵交換費用:33,000円~
退去時クリーニング費用:55,000円(税込)
エアコンクリーニング費用:15,400円(税込)/1台
取引態様:媒介